Klj Pinnacle

Sector 77, Faridabad

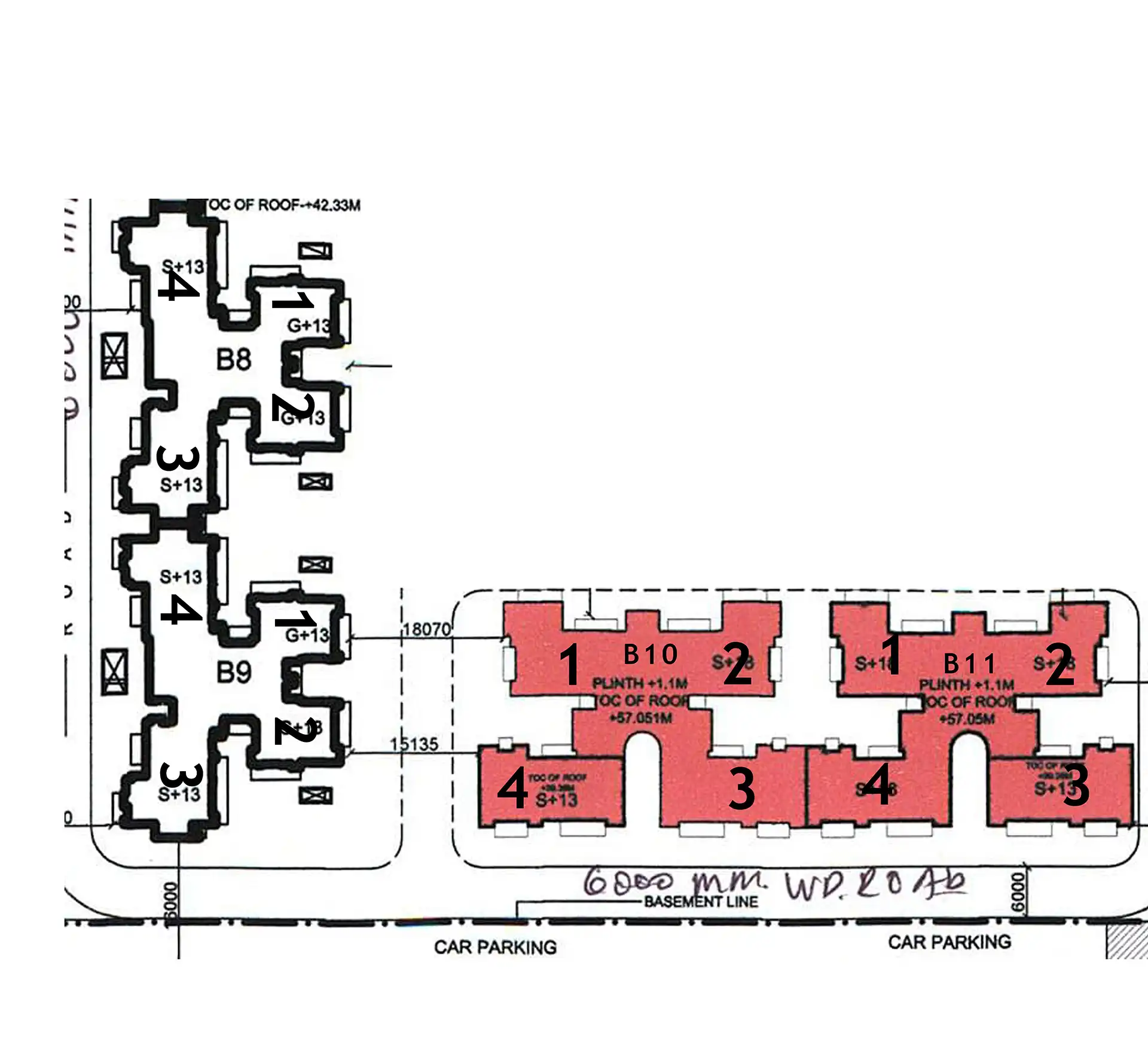
Klj Pinnacle, a high-rise society located in Sector 77 of Faridabad. This residential project is a Ready To Move society. Klj Pinnacle is not registered under RERA. Klj Pinnacle is spread across 5 acres of land. It has 4 towers and total of 292 units. This society has apartments in 3BHK and 4BHK configurations. Klj Pinnacle has 6 types of Vastu compliant apartments that meets the criteria set by Hunt Vastu Homes. It makes it a total possibility of 104 Vastu compliant apartments that follow better Vastu principles than the other apartment in the society. 3BHK, 4BHK flats are in the range of ₹63 lakh - ₹63 lakh. Klj Pinnacle has been designed keeping the modern urbane sensibilities in mind and as such boasts a host of world-class amenities. Here’s a sneak-peek into the amenities that not only add great value to the property but to the lifestyle of the residents too: 24 Hour Security, Aerobics & Dance Room, Amphitheatre, Car Parking, Club House, Day Care / Creche, Earthquake Resistant and Power Backup.

Read More
Completion Year

2019

Construction Status

Ready To Move

Price Range

₹63 lakh - ₹63 lakh

To View Vastu Details Select Tower & Unit

Near by projects

Frequently Asked Question

Is Klj Pinnacle RERA registered?

No! Klj Pinnacle is not RERA registered.

Who is the developer of Klj Pinnacle?

Klj Pinnacle is developed by KLJ Developers Private Limited.

How far is Klj Pinnacle from the Airport?

The distance between Klj Pinnacle and IGI Airport is 52 kms.

How many vastu compliant flats are in Klj Pinnacle?

There are 104 Vastu compliant flats in Klj Pinnacle.

Are there any hospitals near Klj Pinnacle?

Sarvodaya Hospital is just 4.6 kms away from Klj Pinnacle.

Are there any good schools near Klj Pinnacle?

Narayana e-techno school is just 0.5 kms away from Klj Pinnacle.

Which is the closest metro station to Klj Pinnacle?

Bata Chowk is the closest metro station to Klj Pinnacle. It is 8.2 kms away.