Nandan Harsh Paradise Gold

Aundh, Pune

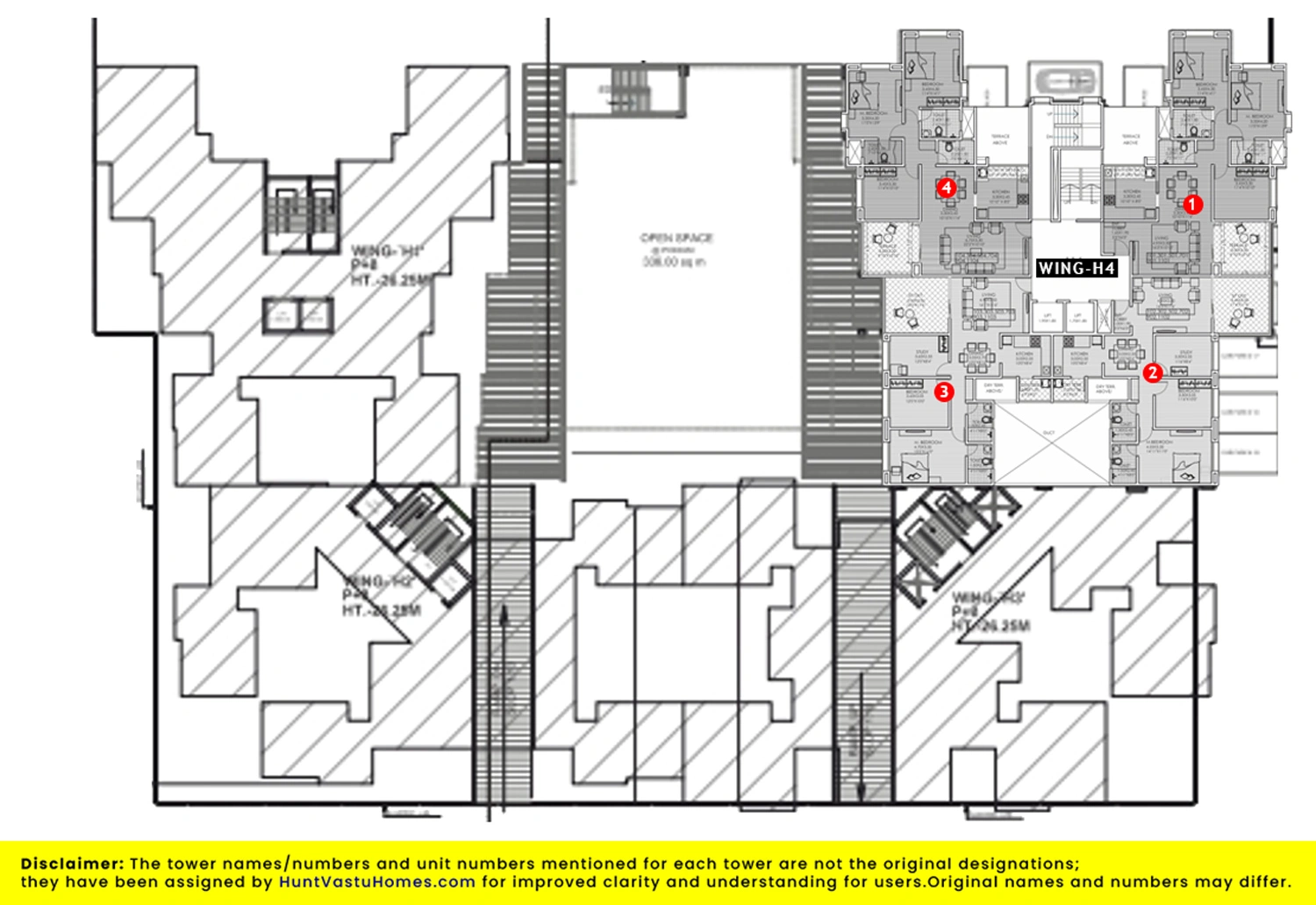
Nandan Harsh Paradise Gold, a high-rise society located in Aundh of Pune. This residential project is a Ready to Move society. Nandan Harsh Paradise Gold is not registered under RERA. Nandan Harsh Paradise Gold is spread across 3 acres of land. It has 1 tower and total of 44 units. This society has apartments in 3BHK configurations. Nandan Harsh Paradise Gold has 1 type of Vastu compliant apartments that meets the criteria set by Hunt Vastu Homes. It makes it a total possibility of 5 Vastu compliant apartments that follow better Vastu principles than the other apartment in the society. 3BHK flats are in the range of ₹1.80 cr - ₹2.02 cr. Nandan Harsh Paradise Gold has been designed keeping the modern urbane sensibilities in mind and as such boasts a host of world-class amenities. Here’s a sneak-peek into the amenities that not only add great value to the property but to the lifestyle of the residents too: 24x7 Water Supply, Aerobics & Dance Room, Badminton Court, Car Parking, CCTV Camera, Club House, Cycling Track, Earthquake Resistant and Fire Fighting System.

Read More
Completion Year

2015

Construction Status

Ready to Move

Price Range

₹1.80 cr - ₹2.02 cr

To View Vastu Details Select Tower & Unit

Near by projects

Frequently Asked Question

Is Nandan Harsh Paradise Gold RERA registered?

No! Nandan Harsh Paradise Gold is not RERA registered.

Who is the developer of Nandan Harsh Paradise Gold?

Nandan Harsh Paradise Gold is developed by Nandan Buildcon.

Which is the closest railway station to Nandan Harsh Paradise Gold?

Nandan Harsh Paradise Gold is 13.4 kms from Akurdi.

How far is Nandan Harsh Paradise Gold from the Airport?

The distance between Nandan Harsh Paradise Gold and Pune International Airport is 15.3 kms.

How many vastu compliant flats are in Nandan Harsh Paradise Gold?

There are 5 Vastu compliant flats in Nandan Harsh Paradise Gold.

Are there any hospitals near Nandan Harsh Paradise Gold?

Sanjivani Medipoint Hospital is just 0.5 kms away from Nandan Harsh Paradise Gold.

Are there any good schools near Nandan Harsh Paradise Gold?

City International School is just 2 kms away from Nandan Harsh Paradise Gold.

Which is the closest metro station to Nandan Harsh Paradise Gold?

Dapodi is the closest metro station to Nandan Harsh Paradise Gold. It is 5.4 kms away.