Sobha Neopolis

Panathur, Bengaluru

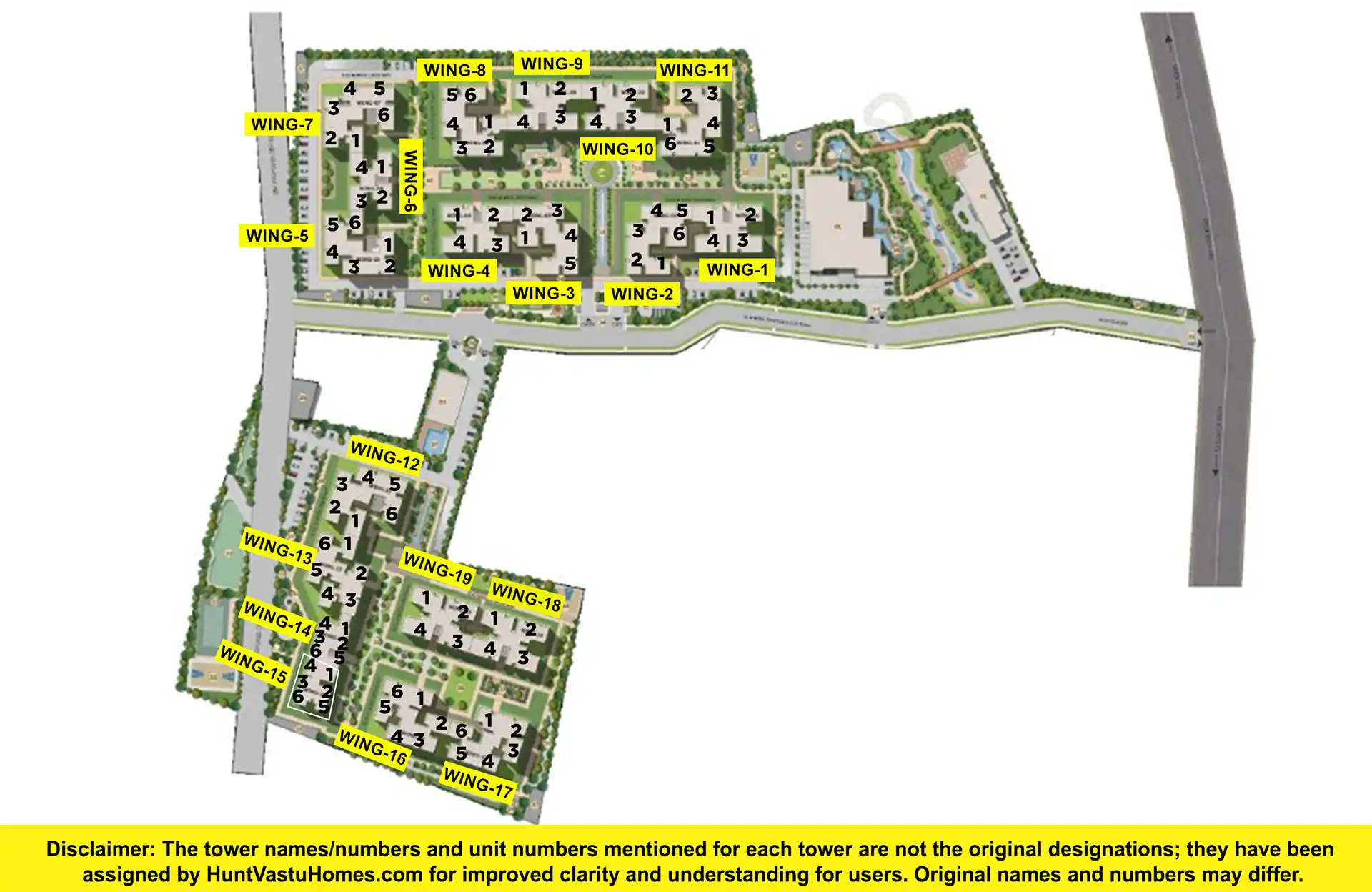
Sobha Neopolis, a high-rise society located in Panathur of Bengaluru. This residential project is an Under Construction society. Sobha Neopolis is a RERA registered project with the following RERA numbers for different phases - Phase 1: PRM/KA/RERA/1251/446/PR/200923/006269, Phase 2: PRM/KA/RERA/1251/446/PR/200923/006270, Phase 3: PRM/KA/RERA/1251/446/PR/220923/006282, Phase 4: PRM/KA/RERA/1251/446/PR/220923/006283, Phase 5: PRM/KA/RERA/1251/446/PR/200923/006271. Sobha Neopolis is spread across 25 acres of land. It has 19 towers and total of 1875 units. This society has apartments in 1BHK, 3BHK and 4BHK configurations. Sobha Neopolis has 14 types of Vastu compliant apartments that meets the criteria set by Hunt Vastu Homes. It makes it a total possibility of 252 Vastu compliant apartments that follow better Vastu principles than the other apartment in the society. 1BHK, 3BHK, 4BHK flats are in the range of ₹93 lakh - ₹3.22 cr. Sobha Neopolis has been designed keeping the modern urbane sensibilities in mind and as such boasts a host of world-class amenities. Here’s a sneak-peek into the amenities that not only add great value to the property but to the lifestyle of the residents too: 24 Hour Security, 24x7 Water Supply, Amphitheatre, Basketball Court, Car Parking, CCTV Camera, Gated Society, Gymnasium and Jogging Track.

Read More
Completion Year

2028

Construction Status

Under Construction

Price Range

₹93 lakh - ₹3.22 cr

To View Vastu Details Select Tower & Unit

Near by projects

Frequently Asked Question

Is Sobha Neopolis RERA registered?

Yes! Sobha Neopolis is RERA registered. RERA No are PRM/KA/RERA/1251/446/PR/200923/006269, PRM/KA/RERA/1251/446/PR/200923/006270, PRM/KA/RERA/1251/446/PR/220923/006282, PRM/KA/RERA/1251/446/PR/220923/006283 and PRM/KA/RERA/1251/446/PR/200923/006271.

Who is the developer of Sobha Neopolis?

Sobha Neopolis is developed by Sobha Developers.

Which is the closest railway station to Sobha Neopolis?

Sobha Neopolis is 2.3 kms from Belandur Road.

How far is Sobha Neopolis from the Airport?

The distance between Sobha Neopolis and Kempegowda International Airport is 44 kms.

How many vastu compliant flats are in Sobha Neopolis?

There are 252 Vastu compliant flats in Sobha Neopolis.

Are there any hospitals near Sobha Neopolis?

Marvel Multispeciality Hospital is just 11 kms away from Sobha Neopolis.

Are there any good schools near Sobha Neopolis?

ORCHIDS The International School in Panathur is just 2.8 kms away from Sobha Neopolis.

Which is the closest metro station to Sobha Neopolis?

Kundalahalli Subway station is the closest metro station to Sobha Neopolis. It is 6.9 kms away.